*Project completed while employed at HLW, photography by Kim Rogers

Starz

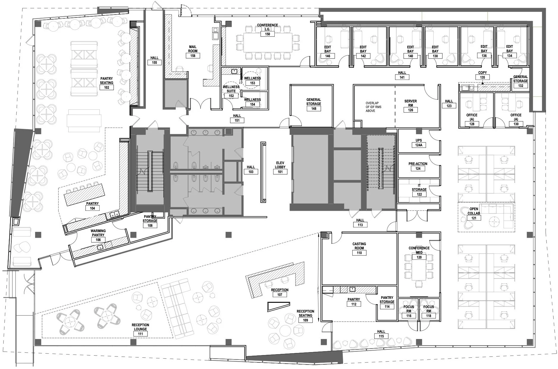
Santa Monica, California

60,000 SF

Starz asked for a bold design that would speak to their brand. The public spaces were to be grand in scale and gesture, yet minimal in style and appropriately sophisticated to entertain in. The workspaces would be understated and neutral to give employees a sense of calm while they work.

 Before Photos

The interior design effort began while the new, ground-up base building was still under construction. The client decided early on that wherever possible to expose the beautifully raw concrete slabs above and below. The angles and frosted diagonal patterning on the building glass served as inspiration for the angular interior architectural gestures and patterning in materials.

A Subtle Nod to Lionsgate

Starz’ parent company, Lionsgate has a rather iconic cloudy blue sky logo. If Lionsgate is “day” then Starz is “night.” Deep purple and midnight blues are injected into the space through textiles and color, and a glowing perforated feature ceiling wraps and tapers across the lobby, then down and behind the reception desk like night stars.

 Professional Photography

Design Process

Renderings, Furniture + Finishes

Previous
Previous

Radiology Partners | El Segundo

Next
Next

Union Bank Plaza Lobby | Los Angeles